2207 Cedar Village Boulevard | East Brunswick

$349,000 | 2 Beds | 2 Baths (2 Full) | 0.0 Sq. Ft.

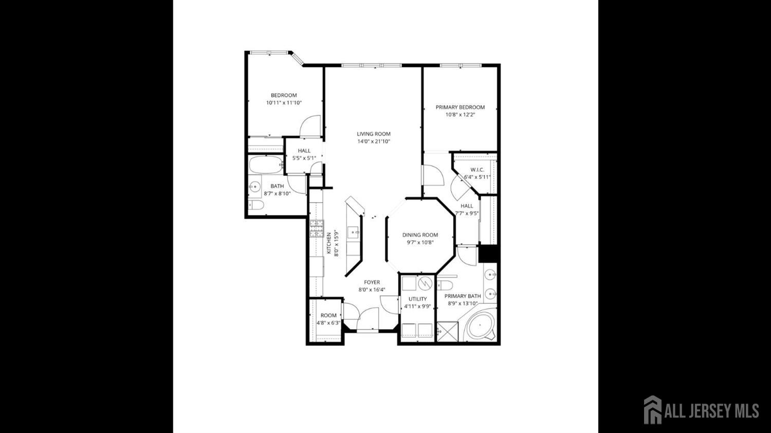
Welcome to the Barkalew Model offering 1,400 sq ft of comfortable, low-maintenance living in the sought after Cedar Village 55+ gated community. The second-floor private unit backs to a tranquil wooded area, providing peaceful views and exceptional privacy. Enter through a welcoming foyer with an oversized hall closet while enjoying a lot of natural,well-lit light and the airy interior with 9 foot ceilings. Step into the kitchen which boasts abundant light oak cabinetry with pull-out shelves, marble backsplash and an extended counter area. The kitchen opens seamlessly to the living room, creating an open floor plan. The separate dining area is perfect for entertaining or everyday living. The primary bedroom features a large closet and private bath with soaking tub and separate stall shower. The second bedroom is thoughtfully situated on the other side of the home. Ample closet space throughout enhances everyday convenience. Major mechanical updates include a two-year old HVAC system and water heater, offering peace of mind.The elevator building provides access to an assigned private underground parking garage with an additional storage area. Residents enjoy an exceptional clubhouse with outstanding amenities, including a heated outdoor pool, fitness center, sauna recreation rooms and a full calendar of social events. Conveniently located near shopping, dining and transportation, Cedar Village offers a vibrant lifestyle with the ease and comfort of community living. CJMLS 2611062R

MLS Listing ID: 
CJMLS 2611062R
Listing Status
Status of the Listing.
Listing Status: 
Active
Listing Status (Local): 
Active
Listing Pricing
Pricing information for this listing.
List Price: 
$349,000
Basic Property Information
Fields containing basic information about the property.
Property Type: 
Residential
Property Sub Type: 
Condo/Townhome
Primary Market Area: 
East Brunswick
Address: 
2207 Cedar Village Boulevard, East Brunswick, NJ 08816, U.S.A.
County: 
Middlesex
Latitude: 
40.4526443
Longitude: 
-74.4229783
Public Remarks: 
Welcome to the Barkalew Model offering 1,400 sq ft of comfortable, low-maintenance living in the sought after Cedar Village 55+ gated community. The second-floor private unit backs to a tranquil wooded area, providing peaceful views and exceptional privacy. Enter through a welcoming foyer with an oversized hall closet while enjoying a lot of natural,well-lit light and the airy interior with 9 foot ceilings. Step into the kitchen which boasts abundant light oak cabinetry with pull-out shelves, marble backsplash and an extended counter area. The kitchen opens seamlessly to the living room, creating an open floor plan. The separate dining area is perfect for entertaining or everyday living. The primary bedroom features a large closet and private bath with soaking tub and separate stall shower. The second bedroom is thoughtfully situated on the other side of the home. Ample closet space throughout enhances everyday convenience. Major mechanical updates include a two-year old HVAC system and water heater, offering peace of mind.The elevator building provides access to an assigned private underground parking garage with an additional storage area. Residents enjoy an exceptional clubhouse with outstanding amenities, including a heated outdoor pool, fitness center, sauna recreation rooms and a full calendar of social events. Conveniently located near shopping, dining and transportation, Cedar Village offers a vibrant lifestyle with the ease and comfort of community living.
Community Information
Association Fee: 
$0
Building Details
Details about the building on a property.
Architectural Style: 
Remarks
Stories: 
1
Year Built: 
2005
Age: 
0
Living Area: 
0.0
Interior: 
Entrance Foyer, 2 Bedrooms, Kitchen, Living Room, Bath Main, Dining Room, Utility Room
Construction
Roof: 
Asphalt
Exterior Features: 
Lawn Sprinklers
Room Details
Details about the rooms in the building.
Total Rooms: 
6
Total Bedrooms: 
2
Total Bathrooms: 
2
Total Full-Bathrooms: 
2
Total Half-Bathrooms: 
0
Utilities
Information about utilities available on the property.
Heating System: 
Forced Air
Cooling System: 
Central Air
Water Source: 
Public
Sewer: 
Public Sewer
Lot/Land Details
Details about the lots and land features included on the property.
Lot Size (Dimensions): 
0.00 x 0.00
Public Record
Parcel Number: 
29.07
Annual Tax: 
$6,470.00
Listing Participants
Participants (agents, offices, etc.) in the transaction.
Listing Office Name: 
RE/MAX PREMIER